hero
hero
hero

Cechy inwestycji

Kameralny apartamentowiec

Zaprojektowany przez nagradzanego architekta: Bartosza Łukaszewicza.

20 lokali (VAT 8%) mieszkaniowych

Każdy z lokali ma swoją,
dedykowaną księgę wieczystą.

Powierzchnie
od 30 do 100 m2

W tym 5 apartamentów dwu-poziomowych o powiększonym metrażu.

400 metrów do “błękitnej” plaży

Plaża, która jako jedna z nielicznych posiada certyfikat „błękitnej flagi”.

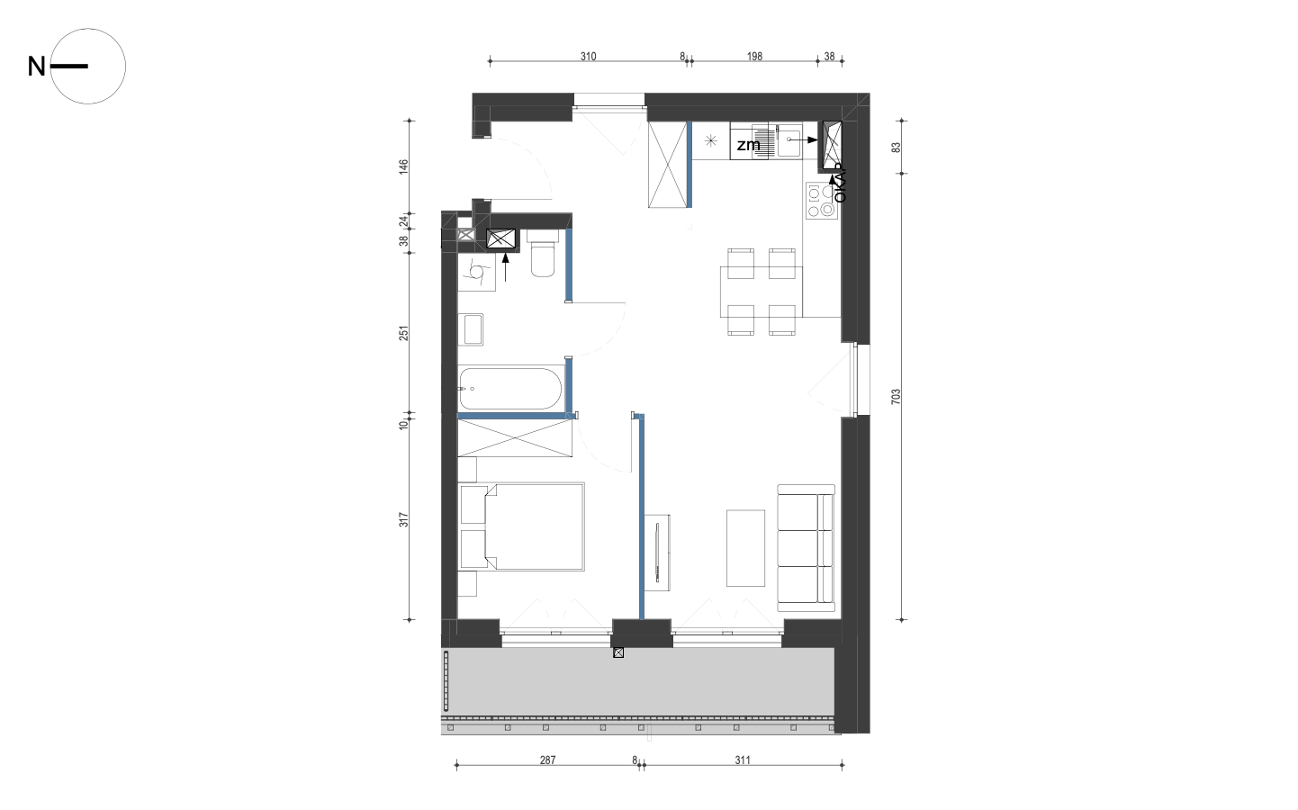
A09

Powierzchnia użytkowa: 45,47 m2
Status: Wolne
A09

Lokalizacja

Apartamenty Mrzezyno Baltic od południowej strony otoczone są lasem sosnowym, a cały obszar należy do nadmorskiego rezerwatu Natura 2000. Odkryj lokalizacje Mrzeżyno Baltic na obu mapach.

mapa Mrzeżyna

Galeria Mrzeżyno Baltic

Kliknij poniżej w galerię, która Cię interesuje:

Kontakt

Chętnie pomożemy w wyborze dla Państwa najlepszego apartamentu i odpowiemy na pytania. Jeśli jesteście Państwo zainteresowani naszą inwestycją, chcecie dowiedzieć się więcej o szczegółach wykończenia lub umówić się na oglądanie zapraszamy do kontaktu.

Wszelkie Prawa zastrzeżone.

Made by setheritage.com